Cập nhật ngày tháng
ID :47642
※Vui lòng cho nhân viên biết số ID này khi được yêu cầu.
1K chung cư Tòa nhà cho thuê Kanagawa Yokohamashi Minami-kuメインステージ横濱黄金町 0307


















Giá thuê/chi phí ban đầu
73,000Yen
Phí quản lý
15,000 Yen
Tiền đặt cọc
0 Yen
Tiền lễ
73,000 Yen
Thông tin tài sản
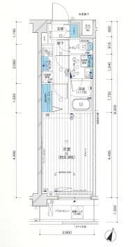
Không gian
1K
Diện tích
26.68㎡
Năm xây dựng
2018năm2Cho đến
Loại căn hộ
chung cư
Thông tin vị trí
Giao thông
Keikyu Line Koganecho đi bộ 4phút
Yokohama Blue Line Yoshinocho đi bộ 8phút
Địa chỉ
Kanagawa Yokohamashi Minami-ku 前里町3丁目78番
0800-111-6663(Miễn phí)
Từ nước ngoài: +81-3-5155-4671
Thông tin cụ thể
Tiền thuê
Phí quản lý
73,000 Yen
15,000 Yen
Tiền đặt cọc
Tiền lễ
0 Yen
73,000 Yen
Tiền bảo lãnh
Tiền cọc không hoàn lại
0 Yen
- Yen
Không gian
1K
Diện tích
26.68㎡
Năm xây dựng
2018năm2Cho đến
Tầng thứ
3Tầng thứ / 7Tầng
Hướng nhà
miền đông nam
Loại căn hộ
chung cư
Kết cấu
lõi thép chống ồn
Bảo hiểm nhà ở
Cần
Có thể chuyển vào luôn
Tư vấn
Điều kiện
Có thể 2 người ở/Thương lượng nuôi thú cưng/Gas thành phố/Phòng tắm và toilet riêng biệt/Bếp 2 chỗ trở lên/Chỗ để máy giặt(Trong nhà)/Khóa tự động Auto lock/Thang máy/Ban công/Sàn ván gỗ/Thùng nhận chuyển phát/Chuông cửa màn hình/Có máy sấy khô trong phòng tắm/Có thể vứt rác 24 giờ/Có bồn rửa mặt riêng/Camera chống trộm/Sử dụng Internet miễn phí/Tủ chứa đồ/Tủ để giày
Bản ghi nhớ
-
Tham khảo
ペット可(敷1)引越業者当社指定保証会社必須(セゾン)退去時要清掃代解約予告50日前ネット込(シーファイブ)電力会社指定有
※ Trong trường hợp thông tin đã đăng và tình trạng thực tế khác nhau, chúng tôi sẽ ưu tiên tình trạng thực tế
vị trí
Địa chỉ
Kanagawa Yokohamashi Minami-ku 前里町3丁目78番
Giao thông
Keikyu Line Koganecho đi bộ 4phút
Yokohama Blue Line Yoshinocho đi bộ 8phút
Tham khảo
Công ty bảo lãnh
Bắt buộc tham gia(Công ty bảo lãnh:Công ty bảo lãnh Global Trust Networks)
Phí sử dụng công ty bảo lãnh:Phí bảo lãnh lần đầu Bằng 30%~100% tổng tiền nhà(Phí bảo lãnh thấp nhất 20,000 yên~)
+ Phí bảo lãnh hằng năm(10,000 yên)hoặc phí bảo lãnh theo tháng(1,000yên~)
Nguồn cung cấp thông tin
Global Trust Networks Co.,Ltd.
Chi nhánh Shin-Okubo
〒 169 - 0072
Tầng 2 AKIYAMA BLD 1-15-15, Okubo, Shinjuku-ku, Tokyo
Member of THE TOKYO REAL ESTATE PUBLIC INTEREST INCORPORATED ASSOCIATION
Member of JAPAN PROPERTY MANAGEMENT ASSOCIATION
Group member of REAL ESTATE FAIR TRADE COUNCIL
Cập nhật ngày tháng
2023/10/08
Ngày cập nhật tiếp theo
2023/10/15
Thời hạn hợp đồng
-
0800-111-6663(Miễn phí)
Từ nước ngoài: +81-3-5155-4671