Cập nhật ngày tháng
ペット飼育可能物件
ID :47537
※Vui lòng cho nhân viên biết số ID này khi được yêu cầu.
1K chung cư Tòa nhà cho thuê Tokyo Itabashi-kuメインステージ板橋蓮根II 0408
























Giá thuê/chi phí ban đầu
69,000Yen
Phí quản lý
20,000 Yen
Tiền đặt cọc
0 Yen
Tiền lễ
0 Yen
Thông tin tài sản
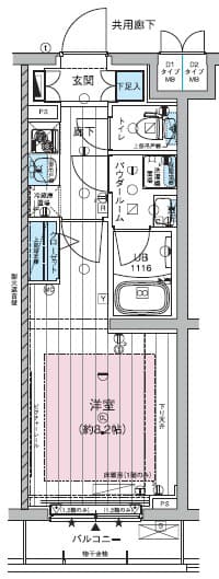
Không gian
1K
Diện tích
25.95㎡
Năm xây dựng
2015năm11Cho đến
Loại căn hộ
chung cư
Thông tin vị trí
Giao thông
Toei Mita Line Hasune đi bộ 8phút
Địa chỉ
Tokyo Itabashi-ku 坂下3丁目5-9
0800-111-6663(Miễn phí)
Từ nước ngoài: +81-3-5155-4671
Thông tin cụ thể
Tiền thuê
Phí quản lý
69,000 Yen
20,000 Yen
Tiền đặt cọc
Tiền lễ
0 Yen
0 Yen
Tiền bảo lãnh
Tiền cọc không hoàn lại
0 Yen
- Yen
Không gian
1K
Diện tích
25.95㎡
Năm xây dựng
2015năm11Cho đến
Tầng thứ
4Tầng thứ / 5Tầng
Hướng nhà
nam
Loại căn hộ
chung cư
Kết cấu
lõi thép chống ồn
Bảo hiểm nhà ở
Cần
Có thể chuyển vào luôn
Tư vấn
Điều kiện
Có thể 2 người ở/Có thể ở chung/Thương lượng nuôi thú cưng/Gas thành phố/Phòng tắm và toilet riêng biệt/Bếp 2 chỗ trở lên/Chỗ để máy giặt(Trong nhà)/Khóa tự động Auto lock/Thang máy/Ban công/Sàn ván gỗ/Thùng nhận chuyển phát/Có bãi đỗ xe đạp/Có Internet(Cáp quang)/Chuông cửa màn hình/Có bệt rửa tự động/Có máy sấy khô trong phòng tắm/Có thể vứt rác 24 giờ/Có bồn rửa mặt riêng/Camera chống trộm/Tủ chứa đồ/Tủ để giày
Bản ghi nhớ
-
Tham khảo
ペット可(敷1)引越し業者指定保証会社必須(エポス)退去時要清掃代解約予告50日前電力業者指定有
※ Trong trường hợp thông tin đã đăng và tình trạng thực tế khác nhau, chúng tôi sẽ ưu tiên tình trạng thực tế
vị trí
Địa chỉ
Tokyo Itabashi-ku 坂下3丁目5-9
Giao thông
Toei Mita Line Hasune đi bộ 8phút
Tham khảo
Công ty bảo lãnh
Bắt buộc tham gia(Công ty bảo lãnh:Công ty bảo lãnh Global Trust Networks)
Phí sử dụng công ty bảo lãnh:Phí bảo lãnh lần đầu Bằng 30%~100% tổng tiền nhà(Phí bảo lãnh thấp nhất 20,000 yên~)
+ Phí bảo lãnh hằng năm(10,000 yên)hoặc phí bảo lãnh theo tháng(1,000yên~)
Nguồn cung cấp thông tin
Global Trust Networks Co.,Ltd.
Chi nhánh Shin-Okubo
〒 169 - 0072
Tầng 2 AKIYAMA BLD 1-15-15, Okubo, Shinjuku-ku, Tokyo
Member of THE TOKYO REAL ESTATE PUBLIC INTEREST INCORPORATED ASSOCIATION
Member of JAPAN PROPERTY MANAGEMENT ASSOCIATION
Group member of REAL ESTATE FAIR TRADE COUNCIL
Cập nhật ngày tháng
2023/10/08
Ngày cập nhật tiếp theo
2023/10/15
Thời hạn hợp đồng
-
Phòng có điều kiện tương tự

74,000Yen(Phí quản lý 15,000 Yen)
ハーモニーレジデンス東京アーバンスクエアItabashi-ku 蓮根3丁目14-30
Tiền đặt cọc - Yen
Tiền lễ - Yen

73,000Yen(Phí quản lý 18,000 Yen)
trias.NItabashi-ku 蓮根3丁目23-2
Tiền đặt cọc - Yen
Tiền lễ - Yen

69,000Yen(Phí quản lý 20,000 Yen)
メインステージ板橋蓮根IIItabashi-ku 坂下3丁目5-9
Tiền đặt cọc 0 Yen
Tiền lễ 0 Yen

68,000Yen(Phí quản lý 20,000 Yen)
メインステージ板橋蓮根IIItabashi-ku 坂下3丁目5-9
Tiền đặt cọc 0 Yen
Tiền lễ 0 Yen

69,000Yen(Phí quản lý 20,000 Yen)
メインステージ板橋蓮根IIItabashi-ku 坂下3丁目5-9
Tiền đặt cọc 0 Yen
Tiền lễ 69,000 Yen

68,000Yen(Phí quản lý 20,000 Yen)
メインステージ板橋志村IIItabashi-ku 坂下1丁目18-19
Tiền đặt cọc 0 Yen
Tiền lễ 0 Yen
0800-111-6663(Miễn phí)
Từ nước ngoài: +81-3-5155-4671