Cập nhật ngày tháng
ペット飼育可能2階以上
ID :47525
※Vui lòng cho nhân viên biết số ID này khi được yêu cầu.
1LDK chung cư Tòa nhà cho thuê Tokyo Sumida-ku日神デュオステージ両国 0703
































Giá thuê/chi phí ban đầu
150,000Yen
Phí quản lý
20,000 Yen
Tiền đặt cọc
0 Yen
Tiền lễ
150,000 Yen
Thông tin tài sản
Không gian
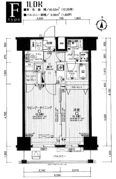
1LDK
Diện tích
40.52㎡
Năm xây dựng
2009năm3Cho đến
Loại căn hộ
chung cư
Thông tin vị trí
Giao thông
Toei Oedo Line Ryogoku đi bộ 6phút
Toei Asakusa Line Kuramae đi bộ 11phút
Địa chỉ
Tokyo Sumida-ku 本所1丁目7-1
0800-111-6663(Miễn phí)
Từ nước ngoài: +81-3-5155-4671
Thông tin cụ thể
Tiền thuê
Phí quản lý
150,000 Yen
20,000 Yen
Tiền đặt cọc
Tiền lễ
0 Yen
150,000 Yen
Tiền bảo lãnh
Tiền cọc không hoàn lại
0 Yen
- Yen
Không gian
1LDK
Diện tích
40.52㎡
Năm xây dựng
2009năm3Cho đến
Tầng thứ
7Tầng thứ / 10Tầng
Hướng nhà
nam
Loại căn hộ
chung cư
Kết cấu
lõi thép chống ồn
Bảo hiểm nhà ở
Cần
Có thể chuyển vào luôn
Có thể chuyển vào luôn
Điều kiện
Thương lượng sử dụng nhạc cụ/Có thể 2 người ở/Có thể ở chung/Thương lượng nuôi thú cưng/Gas thành phố/Phòng tắm và toilet riêng biệt/Vòi hoa sen/Bếp 2 chỗ trở lên/Phòng chứa đồ/Chỗ để máy giặt(Trong nhà)/Khóa tự động Auto lock/Thang máy/Ban công/Sàn ván gỗ/Thùng nhận chuyển phát/Có chỗ để xe máy/Chuông cửa màn hình/Có máy sấy khô trong phòng tắm/Có thể vứt rác 24 giờ/Camera chống trộm/Tủ chứa đồ/Tủ để giày
Bản ghi nhớ
-
Tham khảo
ペット可(敷1)引越し業者指定保証会社必須(クレディセゾン)退去時要清掃代解約予告50日前電力業者指定有
※ Trong trường hợp thông tin đã đăng và tình trạng thực tế khác nhau, chúng tôi sẽ ưu tiên tình trạng thực tế
vị trí
Địa chỉ
Tokyo Sumida-ku 本所1丁目7-1
Giao thông
Toei Oedo Line Ryogoku đi bộ 6phút
Toei Asakusa Line Kuramae đi bộ 11phút
Tham khảo
Công ty bảo lãnh
Bắt buộc tham gia(Công ty bảo lãnh:Công ty bảo lãnh Global Trust Networks)
Phí sử dụng công ty bảo lãnh:Phí bảo lãnh lần đầu Bằng 30%~100% tổng tiền nhà(Phí bảo lãnh thấp nhất 20,000 yên~)
+ Phí bảo lãnh hằng năm(10,000 yên)hoặc phí bảo lãnh theo tháng(1,000yên~)
Nguồn cung cấp thông tin
Global Trust Networks Co.,Ltd.
Chi nhánh Shin-Okubo
〒 169 - 0072
Tầng 2 AKIYAMA BLD 1-15-15, Okubo, Shinjuku-ku, Tokyo
Member of THE TOKYO REAL ESTATE PUBLIC INTEREST INCORPORATED ASSOCIATION
Member of JAPAN PROPERTY MANAGEMENT ASSOCIATION
Group member of REAL ESTATE FAIR TRADE COUNCIL
Cập nhật ngày tháng
2023/10/05
Ngày cập nhật tiếp theo
2023/10/15
Thời hạn hợp đồng
-
0800-111-6663(Miễn phí)
Từ nước ngoài: +81-3-5155-4671