Próxima data de atualização
ID :47560
*Por favor, diga-nos este número de identificação se você estiver fazendo alguma consulta.
1K Apartamento padrão Alugar apartamento Kanagawa Yokohamashi Minami-kuメインステージ横濱伊勢佐木II 0401


































Aluguel/custo inicial
65,500Yen
Taxa de manutenção
15,000 Yen
Depósito
0 Yen
Dinheiro chave
0 Yen
Custo inicial
Tipo de sala
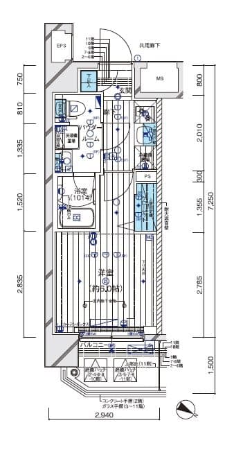
1K
Área
21.31㎡
Data de arquitetura
2017/6/
tipo de construção
Apartamento padrão
Acesso
Transporte
Yokohama Blue Line Isezakichojamachi Walk 6min
Yokohama Blue Line Bandobashi Walk 9min
Endereço
Kanagawa Yokohamashi Minami-ku 永楽町1丁目8-32
0800-111-6663(gratuito)
Do exterior: +81-3-5155-4671
Informações detalhadas
Aluguel
Taxa de manutenção
65,500 Yen
15,000 Yen
Depósito
Dinheiro chave
0 Yen
0 Yen
Depósito de garantia
Depósito de garantia não reembolsável
0 Yen
- Yen
Tipo de sala
1K
Área
21.31㎡
Data de arquitetura
2017/6/
Andar
4Andar / 11Prédio de andares
Direção
north-east
tipo de construção
Apartamento padrão
Tipo de estrutura
Concreto armado
Seguro residencial
Required
Data de Ocupação
Imóvel disponível para ocupação
Critério de busca
Não permitido animais/Gás municipal/Chuveiro e banheiro separado/Fogão de mais de 2 bocas/Área para máquina de lavar/Fechadura eletrônica/Elevador/Sacada/Piso de madeira/Caixa Postal/Apartamento de canto/Interfone c/ camera/Banheiro c/ secador de roupas /Jogar lixo em qualquer horário /Lavatório independente/Câmera de segurança/Internet ilimitado/Closet/Sapateira
Nota
-
Observações
ペット可(敷1)保証会社必須(セゾン)退去時要清掃代解約予告50日前ネット込み(シーファイブ)電力会社指定有
※ Se as informações publicadas forem diferentes do status atual, damos prioridade ao status atual.
localização
Endereço
Kanagawa Yokohamashi Minami-ku 永楽町1丁目8-32
Transporte
Yokohama Blue Line Isezakichojamachi Walk 6min
Yokohama Blue Line Bandobashi Walk 9min
Observações
Empresa fiadora
Assinatura necessária (nome da empresa de garantia: Global Trust Networks Co. Ltd.)
Garantia Empresa Taxa de utilização: Taxa de garantia inicial de 30% a 100% da renda total mensal (taxa mínima de garantia de 20,000 ienes ~)
+ Taxa de garantia anual (10.000 ienes) ou Taxa de garantia mensal (1.000 ienes ~)
Fonte de informações
Global Trust Networks Co.,Ltd.
Shin-Okubo Branch
AKIYAMA BLD. 2nd Floor
1-15-15 Okubo, Shinjuku-ku, Tokyo 169-0072 Japan
Member of THE TOKYO REAL ESTATE PUBLIC INTEREST INCORPORATED ASSOCIATION
Member of JAPAN PROPERTY MANAGEMENT ASSOCIATION
Group member of REAL ESTATE FAIR TRADE COUNCIL
Próxima data de atualização
2023/10/08
Próxima data de atualização
2023/10/15
Período do contrato
-
Apartamentos com critérios semelhantes.

67,000Yen(Taxa de manutenção 15,000 Yen)
ハーモニーレジデンス横濱関内Yokohamashi Naka-ku 千歳町1-3
Depósito - Yen
Dinheiro chave - Yen

67,000Yen(Taxa de manutenção 12,000 Yen)
ロアール横浜南伍番館Yokohamashi Minami-ku 睦町1丁目15番2
Depósito - Yen
Dinheiro chave - Yen

67,400Yen(Taxa de manutenção 12,100 Yen)
ロアール横浜南弐番館Yokohamashi Minami-ku 高砂町3丁目28番2
Depósito - Yen
Dinheiro chave - Yen

68,000Yen(Taxa de manutenção 15,000 Yen)
メインステージ横濱阪東橋Yokohamashi Minami-ku 浦舟町5丁目
Depósito 0 Yen
Dinheiro chave 68,000 Yen

69,000Yen(Taxa de manutenção 15,000 Yen)
メインステージ横濱弥生町Yokohamashi Naka-ku 弥生町2丁目24-4
Depósito 0 Yen
Dinheiro chave 0 Yen

65,500Yen(Taxa de manutenção 15,000 Yen)
メインステージ横濱伊勢佐木IIYokohamashi Minami-ku 永楽町1丁目8-32
Depósito 0 Yen
Dinheiro chave 65,500 Yen

63,500Yen(Taxa de manutenção 15,000 Yen)
メインステージ横濱伊勢佐木IIYokohamashi Minami-ku 永楽町1丁目8-32
Depósito 0 Yen
Dinheiro chave 0 Yen

64,000Yen(Taxa de manutenção 15,000 Yen)
メインステージ横濱伊勢佐木IIYokohamashi Minami-ku 永楽町1丁目8-32
Depósito 0 Yen
Dinheiro chave 64,000 Yen

67,000Yen(Taxa de manutenção 15,000 Yen)
メインステージ横濱伊勢佐木IIYokohamashi Minami-ku 永楽町1丁目8-32
Depósito 0 Yen
Dinheiro chave 0 Yen
0800-111-6663(gratuito)
Do exterior: +81-3-5155-4671