업데이트 날짜
☆分譲賃貸☆ネット込☆ペット可☆
ID :47620
※ 문의시 제품의 ID번호를 직원에게 알려 주시기 바랍니다.
1K 맨션 임대 주택 동경도 키타쿠メインステージ十条II 0204






















임대료 · 초기 비용
74,500엔
관리비용
20,000 엔
시키킹
0 엔
레이킹
0 엔
물건명
방구조
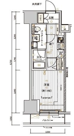
1K
면적
25.68㎡
건축 연월일
2020년11월
건물종별
맨션
접근
노선
케이힌 토호쿠 네기시 선 히가시주조 도보 7분
사이쿄 선 주조 도보 9분
주소로
동경도 키타쿠 中十条1丁目12-12
0800-111-6663(무료)
해외에서: +81-3-5155-4671
상세정보
임대료
관리비용
74,500 엔
20,000 엔
시키킹
레이킹
0 엔
0 엔
보증금
상각금
0 엔
- 엔
방구조
1K
면적
25.68㎡
건축 연월일
2020년11월
층
2층 / 14층 건물
방향
남서
건물종별
맨션
구조
철근 콘크리트조
주택보험
필요함
입주 가능한 날
즉입주 가능
세부 조건
2인 입주가능/룸 쉐어가능/펫 상담가능/도시가스/욕실・화장실 분리/스토브 2구 이상/세탁기 놓는 곳(실내)/오토락/엘리베이터/발코니/플로어링/택배박스/자전거 주차장 잇음/TV도어 폰/온수세정변좌/욕실건조기/독립세면대/방범카메라/클로젯・수납/슈즈 인 클로젯
추기
-
그 외
ペット可(敷1)告知有り引越し業者指定保証会社必須(エポス)退去時要清掃代解約予告50日前電力業者指定有ネット込(シーファイブ)
※ 게재되어있는 정보와 현황이 다른 경우에는 현상을 우선시 합니다.
위치
주소로
동경도 키타쿠 中十条1丁目12-12
노선
케이힌 토호쿠 네기시 선 히가시주조 도보 7분
사이쿄 선 주조 도보 9분
그 외
보증회사
가입 필수(보증회사 :주식회사 글로벌 트러스트 네트웍스)
보증회사 이용료:첫 보증료 월세의 30%~100%(최저 보증료 20,000円~)
+ 연간보증료(10,000円)혹은 매월 보증료(1,000円~)
정보 출처
주식회사 글로벌 트러스트 네트웍스
신오쿠보점
〒169-0072
도쿄도 신주쿠구 오쿠보 1-15-15 AKIYAMA BLD2층
Member of THE TOKYO REAL ESTATE PUBLIC INTEREST INCORPORATED ASSOCIATION
Member of JAPAN PROPERTY MANAGEMENT ASSOCIATION
Group member of REAL ESTATE FAIR TRADE COUNCIL
업데이트 날짜
2023/10/08
다음 업데이트
2023/10/15
계약기간
-
0800-111-6663(무료)
해외에서: +81-3-5155-4671
