更新日期
☆最寄り駅徒歩3分☆☆角部屋☆ペット飼育可☆
ID :47727
※咨询时请告知工作人员此处您的ID号码。
1LDK 高级公寓 租赁物件 東京都 千代田区メインステージ九段下 1005




















租金/初始成本
190,000日元
管理费
20,000 日元
押金
0 日元
礼金
190,000 日元
物件
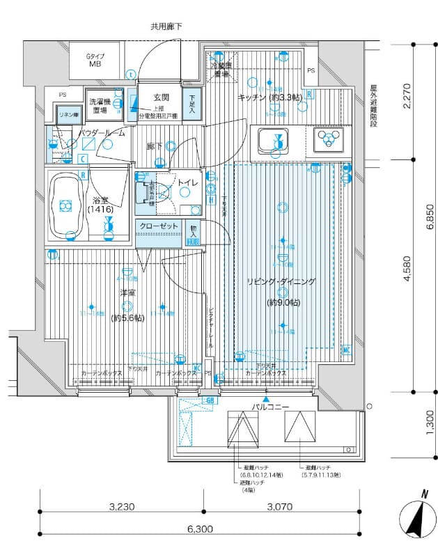
房间布局
1LDK
面积
42㎡
建筑年月日
2011年7月
建筑物类别
高级公寓
交通
交通
半蔵門線 九段下 步行 3分
都営三田線 神保町 步行 3分
住所
東京都 千代田区 神田神保町3丁目9-2
0800-111-6663(免费)
来自海外: +81-3-5155-4671
详细信息
房租
管理费
190,000 日元
20,000 日元
押金
礼金
0 日元
190,000 日元
保证金
押金(不退还)
0 日元
- 日元
房间布局
1LDK
面积
42㎡
建筑年月日
2011年7月
楼
10楼 / 14层楼的建筑
朝向
南
建筑物类别
高级公寓
构造
钢筋混凝土
房屋火灾保险
要
可入住时间
咨询
详细条件
宠物可商谈/都市煤气/浴室、卫生间分开/自动锁/电梯/智能自助快递柜/温水洗净座便器/浴室干燥机/耐震构造/24小时随时丢垃圾/防盗摄像头/壁橱
备考
-
其他
ペット可(敷1)引越業者当社指定保証会社必須(エポス退去時要清掃代解約予告50日前電力事業者指定有
※ 登载内容与现状不符的时候,以现状为准。
位置
住所
東京都 千代田区 神田神保町3丁目9-2
交通
半蔵門線 九段下 步行 3分
都営三田線 神保町 步行 3分
其他
保证公司
必须(保证公司名:株式会社全球信赖网)
保证公司费用:初期保证费 月房租的30%~100%(最低保证费20,000日元~)
+年度保证费(10,000日元)或月度保证费(1,000日元~)
信息提供者
Global Trust Networks Co.,Ltd.
新大久保分公司
〒169 - 0072
東京都新宿区大久保1-15-15 AKIYAMA BLD2楼
Member of THE TOKYO REAL ESTATE PUBLIC INTEREST INCORPORATED ASSOCIATION
Member of JAPAN PROPERTY MANAGEMENT ASSOCIATION
Group member of REAL ESTATE FAIR TRADE COUNCIL
更新日期
2023/10/08
下次更新日期
2023/10/15
合同期
-
0800-111-6663(免费)
来自海外: +81-3-5155-4671
