更新日期
☆1LDK角部屋☆ネット込み☆ペット飼育可能☆
ID :47592
※咨询时请告知工作人员此处您的ID号码。
1LDK 高级公寓 租赁物件 東京都 台東区メインステージ三ノ輪EAST 0601




















租金/初始成本
142,000日元
管理费
20,000 日元
押金
0 日元
礼金
142,000 日元
物件
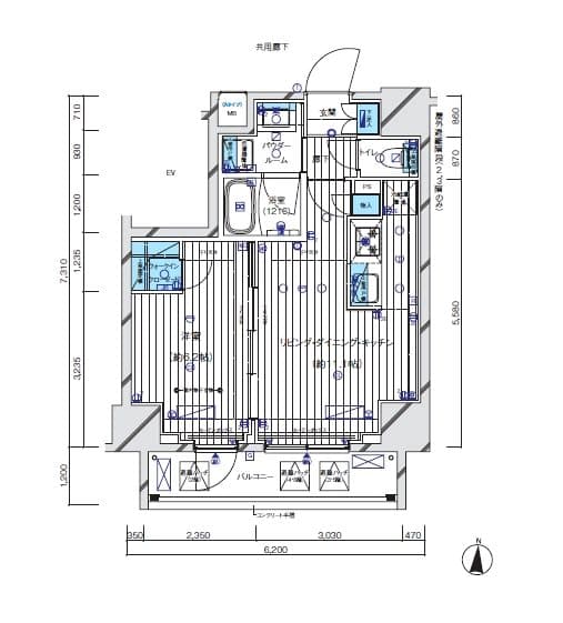
房间布局
1LDK
面积
40.21㎡
建筑年月日
2019年3月
建筑物类别
高级公寓
交通
交通
日比谷線 三之輪 步行 4分
常磐線 南千住 步行 8分
住所
東京都 台東区 三ノ輪2丁目2番-1
0800-111-6663(免费)
来自海外: +81-3-5155-4671
详细信息
房租
管理费
142,000 日元
20,000 日元
押金
礼金
0 日元
142,000 日元
保证金
押金(不退还)
0 日元
- 日元
房间布局
1LDK
面积
40.21㎡
建筑年月日
2019年3月
楼
6楼 / 13层楼的建筑
朝向
南
建筑物类别
高级公寓
构造
钢筋混凝土
房屋火灾保险
要
可入住时间
咨询
详细条件
可二人入住/可合租/宠物可商谈/都市煤气/浴室、卫生间分开/双口以上炉灶/步入式衣帽间/洗衣机放置处(室内)/自动锁/电梯/阳台/地板/智能自助快递柜/附自行车停车场/附摩托车停车场/拐角房间/可视门铃/温水洗净座便器/浴室干燥机/耐震构造/24小时随时丢垃圾/独立洗面台/防盗摄像头/免费使用网络/鞋柜
备考
-
其他
ペット可(敷1)引越し業者指定保証会社必須(エポス退去時要清掃代解約予告50日前電力業者指定有ネット込(シーファイブ)
※ 登载内容与现状不符的时候,以现状为准。
位置
住所
東京都 台東区 三ノ輪2丁目2番-1
交通
日比谷線 三之輪 步行 4分
常磐線 南千住 步行 8分
其他
保证公司
必须(保证公司名:株式会社全球信赖网)
保证公司费用:初期保证费 月房租的30%~100%(最低保证费20,000日元~)
+年度保证费(10,000日元)或月度保证费(1,000日元~)
信息提供者
Global Trust Networks Co.,Ltd.
新大久保分公司
〒169 - 0072
東京都新宿区大久保1-15-15 AKIYAMA BLD2楼
Member of THE TOKYO REAL ESTATE PUBLIC INTEREST INCORPORATED ASSOCIATION
Member of JAPAN PROPERTY MANAGEMENT ASSOCIATION
Group member of REAL ESTATE FAIR TRADE COUNCIL
更新日期
2023/10/07
下次更新日期
2023/10/15
合同期
-
0800-111-6663(免费)
来自海外: +81-3-5155-4671


